| Price: | $315,000 |
| Property Type: | residential |
| MLS #: | 20262666 |
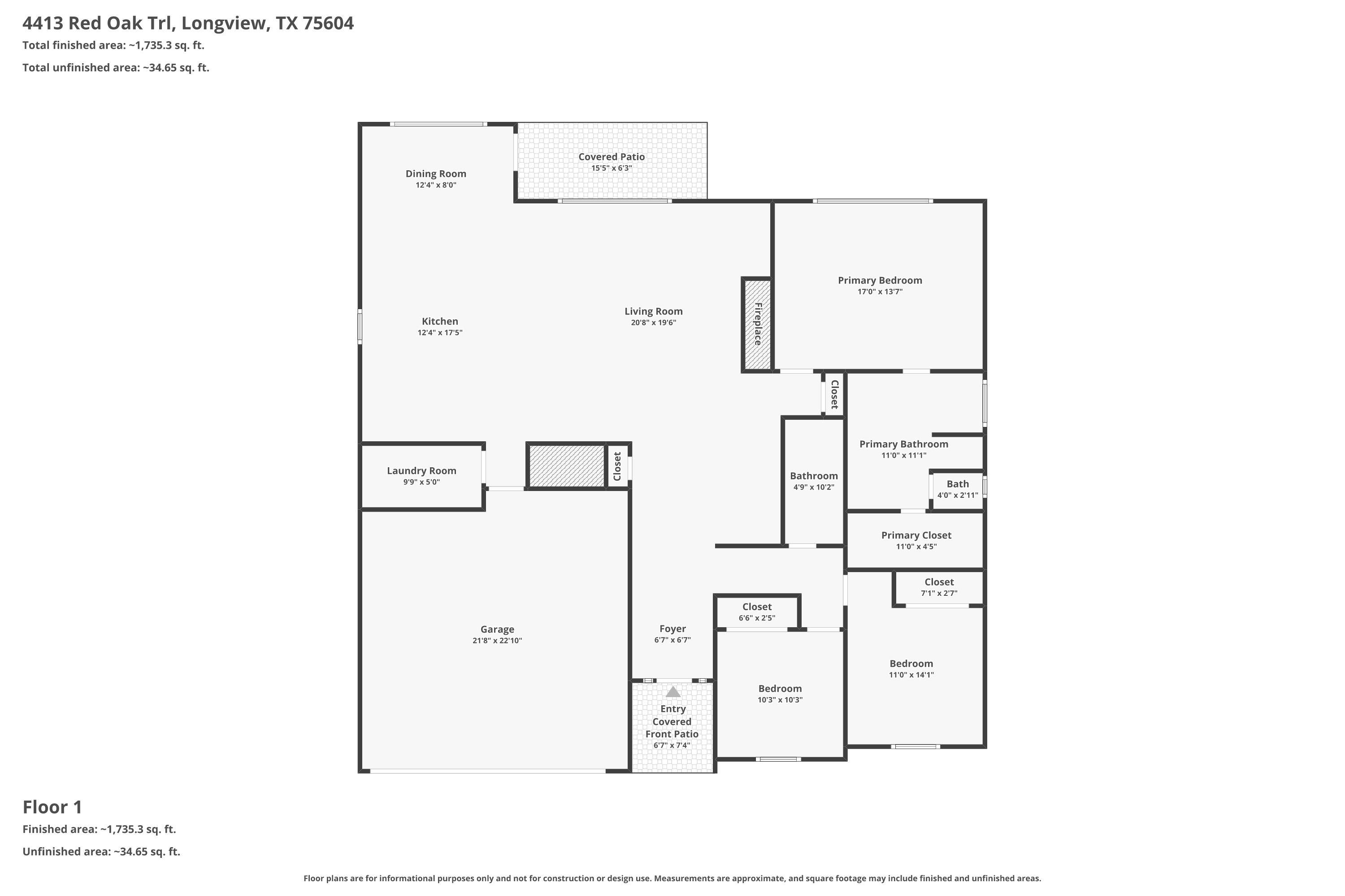
| Located at 4413 Red Oak Trail in Longview, this 1,894 sq ft home is a masterclass in functional design and effortless flow. Priced at $315,000, the property features a fully open layout and a quarter-acre lot in the quiet Rustic Oak community. Situated within the respected Spring Hill area, it offers a solid, single-story lifestyle where the layout does the heavy lifting. The heart of this home is a completely open floor plan with over-sized built-ins and island that keeps space connected; the 1,894 square feet feels significantly larger and more inviting. Natural light travels freely throughout the day, and the fireplace provides a grounded centerpiece for evening. It's a setup that works just as well for a Tuesday night dinner as it does for a full house on a Saturday. This brick-and-stone home also offers a split-floorplan design that gives the primary suite its own sense of privacy while keeping the other bedrooms within reach. The home feels current with a smart bathroom renovation and updated fixtures. Tucked away on a quiet cul-de-sac, not quite outside city limits, the home is part of a community that values a tidy, consistent look. The Rustic Oaks neighborhood, in the Spring Hill Independent School District, gives that quiet, residential feel while remaining minutes from the essentials of Longview. This well-proportioned home feels right from the moment you step inside. It's ready for someone to move in, unpack, and start their next chapter. Jump on this one before it slips away. | |
| Area: | Spring Hill Isd |
| Year Built: | 2005 |
| Bedrooms: | Three |
| Bathrooms: | Two |
| Garage: | 2 |
| Acres: | 0.25 |
| Virtual Tour: | Click here to view |
| Heating : | Central Gas |
| Cooling : | Central Electric |
| InteriorFeatures : | Wired for Networking |
| InteriorFeatures : | Smoke Detectors |
| InteriorFeatures : | Whirlpool Type Tub |
| InteriorFeatures : | Blinds |
| InteriorFeatures : | Cable TV |
| InteriorFeatures : | Security System Owned |
| InteriorFeatures : | Ceiling Fan |
| InteriorFeatures : | Bookcases |
| InteriorFeatures : | High Ceilings |
| InteriorFeatures : | Tile Flooring |
| InteriorFeatures : | Carpeting |
| InteriorFeatures : | Shades/Blinds |
| InteriorFeatures : | Partial Curtains |
| Fireplaces : | Glass Doors |
| Fireplaces : | Gas Starter |
| Fireplaces : | Living Room |
| Fireplaces : | Gas Logs |
| DiningRoom : | Kitchen/Eating Combo |
| DiningRoom : | Den/Dining Combo |
| DiningRoom : | Breakfast Bar |
| CONSTRUCTION : | Brick and Stone |
| CONSTRUCTION : | Slab Foundation |
| WATER/SEWER : | Public Sewer |
| WATER/SEWER : | Public Water |
| Style : | Traditional |
| ROOM DESCRIPTION : | 1 Living Area |
| ROOM DESCRIPTION : | Utility Room |
| KITCHEN EQUIPMENT : | Food Center |
| KITCHEN EQUIPMENT : | Vent Fan |
| KITCHEN EQUIPMENT : | Disposal |
| KITCHEN EQUIPMENT : | Dishwasher |
| KITCHEN EQUIPMENT : | Microwave |
| KITCHEN EQUIPMENT : | Cooktop-Electric |
| KITCHEN EQUIPMENT : | Double Oven |
| KITCHEN EQUIPMENT : | Drop-in Range |
| KITCHEN EQUIPMENT : | Self-Cleaning Oven |
| KITCHEN EQUIPMENT : | Elec Range/Oven |
| FENCING : | Wood Fence |
| FENCING : | Cross Fence |
| DRIVEWAY : | Concrete |
| ExistingStructures : | Storage Buildings |
| UTILITY TYPE : | Electric |
| UTILITY TYPE : | Natural Gas |
| UTILITY TYPE : | High Speed Internet Avail |
| UTILITY TYPE : | Cable Available |
| ExteriorFeatures : | Gutter(s) |
| ExteriorFeatures : | Security Lighting |
| ExteriorFeatures : | Sprinkler System |
| ExteriorFeatures : | Patio Covered |
| ExteriorFeatures : | Patio Open |
| ExteriorFeatures : | Storage Building |
| ExteriorFeatures : | Auto Sprinkler |
| LAND FEATURES : | Cul-de-sac |
Courtesy: • COLDWELL BANKER LENHART • 903-753-0447
Users may not reproduce or redistribute the data found on this site. The data is for viewing purposes only. Data is deemed reliable, but is not guaranteed accurate by the MLS or LAAR.
This content last refreshed on 04/24/2026 06:30 AM. Some properties which appear for sale on this web site may subsequently have sold or may no longer be available.