| Price: | $242,500 |
| Property Type: | residential |
| MLS #: | 20262208 |
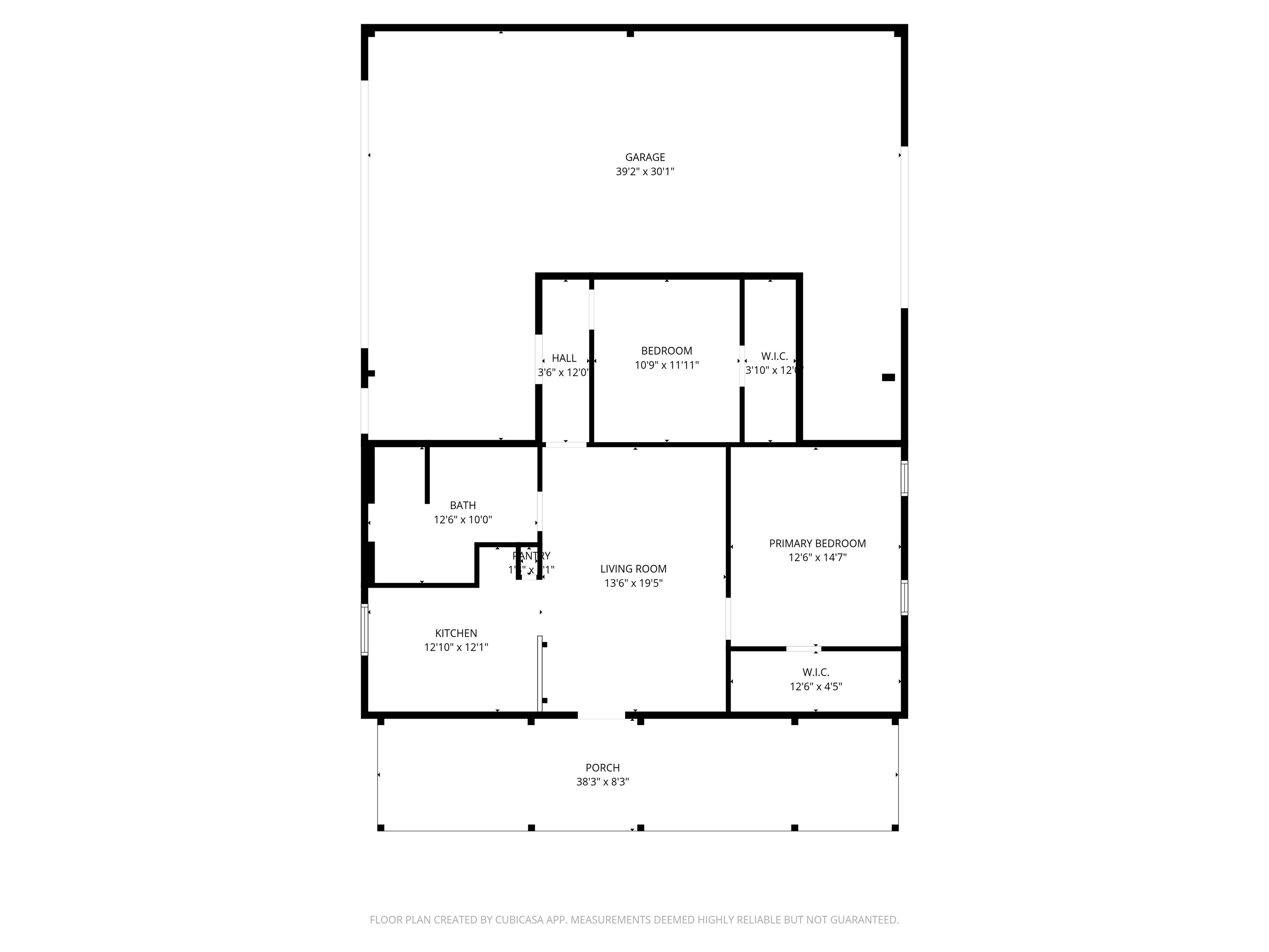
| Tucked away on approx. 30 private acres, this barndominium offers the perfect escape for anyone craving peace, quiet, and total seclusion. The 1,000 sf living area features 2 bedrooms and 1 bath with a comfortable, functional layout - ideal for full-time country living or a weekend getaway. Attached is a 1,000 sf shop, perfect for hobbies, equipment, or workspace needs. The property also includes a cargo container for storage. Surrounded by nature and set well off the beaten path, this property is a rare opportunity to enjoy true solitude while still having all the essentials. If you've been searching for a private retreat where you can unwind, spread out, and enjoy the quiet, this is it! | |
| Area: | Carthage Isd |
| Year Built: | 2006 |
| Bedrooms: | Two |
| Bathrooms: | One |
| Garage: | 0 |
| Acres: | 30.01 |
| Heating : | Central Electric |
| Cooling : | Central Electric |
| InteriorFeatures : | Shades/Blinds |
| InteriorFeatures : | Tile Flooring |
| InteriorFeatures : | Other Floors |
| Fireplaces : | None |
| DiningRoom : | Breakfast Bar |
| CONSTRUCTION : | Slab Foundation |
| CONSTRUCTION : | Metal |
| WATER/SEWER : | Well |
| WATER/SEWER : | Aerobic Septic System |
| ROOM DESCRIPTION : | 1 Living Area |
| ROOM DESCRIPTION : | Family Room |
| KITCHEN EQUIPMENT : | Dishwasher |
| FENCING : | Partial Fence |
| DRIVEWAY : | Natural |
| ExistingStructures : | Storage Buildings |
| ExistingStructures : | Metal Outbuildings |
| UTILITY TYPE : | COOP Electric |
| ExteriorFeatures : | Storage Building |
Courtesy: • NOON AND ASSOCIATES • 903-247-3030
Users may not reproduce or redistribute the data found on this site. The data is for viewing purposes only. Data is deemed reliable, but is not guaranteed accurate by the MLS or LAAR.
This content last refreshed on 04/23/2026 11:30 AM. Some properties which appear for sale on this web site may subsequently have sold or may no longer be available.